Lakás eladó

Budapest II. ker., Fillér utca - Országút
129.900.000 Ft
€ 364.049
3 szoba 3 szoba
61 nm 61 nm
1 fürdő 1 fürdő

Lakás eladó

Budapest II. ker., Fillér utca - Országút

Leírás

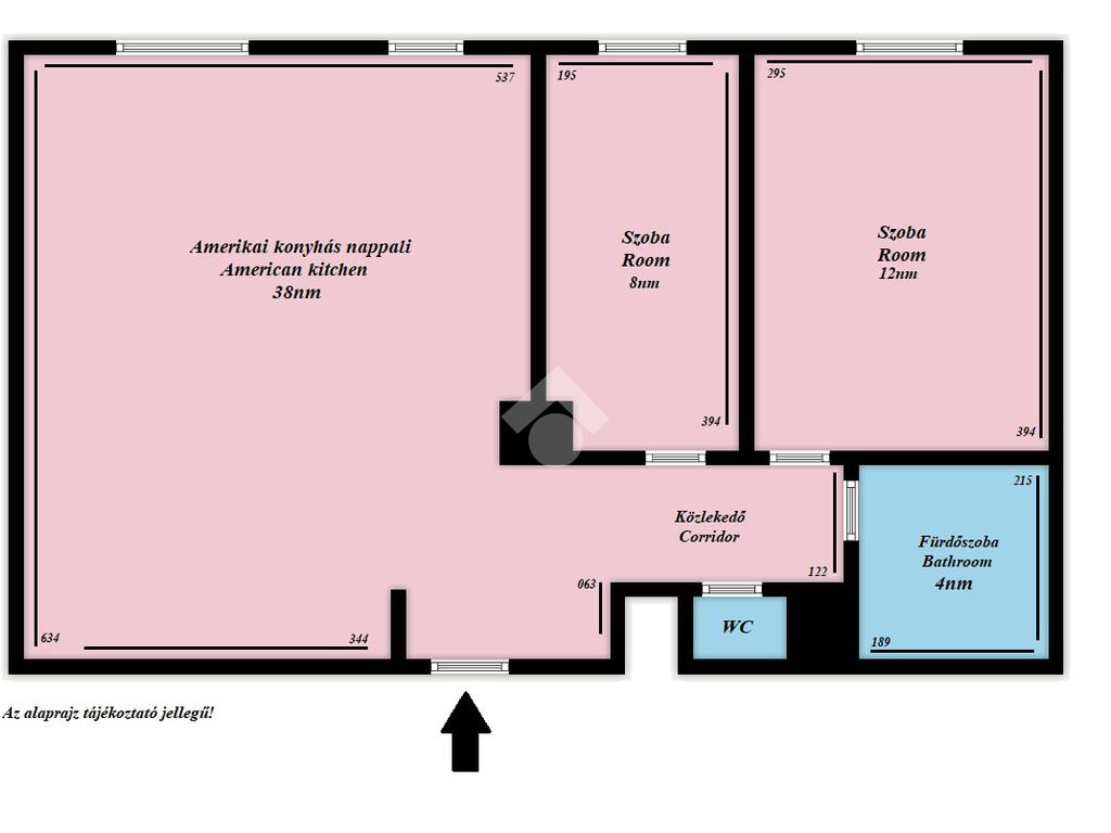
Eladó 61 m²-es, szépen felújított, világos, 6. emeleti, 3 szobás lakás a II. kerületben, a Millenáris Park közelében!

Kivételes lehetőség a város egyik legélhetőbb, folyamatosan fejlődő részén! A lakás teljeskörűen és igényesen felújított, modern megoldásokkal és jól átgondolt belső elrendezéssel, légkondicionálóval felszerelt.

A 6. emeleti fekvés biztosítja a kiváló benapozást, a csendes környezetet és a kellemes kilátást. Tökéletes választás mindazok számára, akik szeretnék ötvözni a városi kényelmet a zöldterületek közelségével.

Főbb jellemzők:

61 m², 3 külön nyíló szobával

Ízlésesen, minőségi anyagokkal felújított

6. emeleti, rendkívül világos lakás

Csendes, rendezett társasház

A társasház belső udvarán biztosított a parkolás

Néhány perc sétára a Millenáris Parktól – tökéletes pihenéshez, sporthoz, családi programokhoz

Kiváló közlekedés: metró, villamos és buszjáratok a közelben

Éttermek, kávézók, üzletek és kulturális lehetőségek a környéken

3 szobás kialakítása miatt ideális családoknak, pároknak vagy akár befektetési célra is.

Összes mutatása

Tulajdonságok

Ref.:
59107
Állapot:
Felújított
Emelet:
6
Lift:
Van
Építőanyag:
Tégla
Építés éve:
1984
Összes mutatása

Energetikai tanúsítvány

Ehhez az ingatlanhoz nem tartozik energetikai tanúsítvány
Építés éve:
1984

Vegye fel velünk a kapcsolatot

* Ez a mező kötelező
Franchisee
Mille-Case Kft.
1024 Budapest, Fillér utca, 8.
1024 Budapest, Fillér utca, 8. I-II. kerület Millenáris
Hétfő-Péntek: 09:00-18:00,Szombat: 09:00-14:00

Munkatársaink


  • Lesánics Rudolf
    Irodatulajdonos

  • Sámuel Nógrádi
    Irodavezető

  • György Póth
    Képviselő

  • Bence Kovács
    Képviselő

  • Alexa Ungár
    Asszisztens
Franchisee
Mille-Case Kft.
1024 Budapest, Fillér utca, 8.
Tecnocasa Group Logo

Minden ügynökségnek saját tulajdonosa van és önállóan működik.

árfolyam 26/05/2026
EUR 356.82 HUF

cégünk

Elérhetőségeink

2026 Gruppo T.F.M. Szolgáltató Zrt. - P. IVA 27421275-2-42 - 1068 Budapest, Király utca 102.. Minden ügynökségnek saját tulajdonosa van és önállóan működik.

Adatvédelmi irányelvek | Cookies tájékoztató