Lakás eladó

Budapest II. ker., Buday László utca - Országút
138.000.000 Ft
€ 386.749
3 szoba 3 szoba
81 nm 81 nm

Lakás eladó

Budapest II. ker., Buday László utca - Országút

Leírás

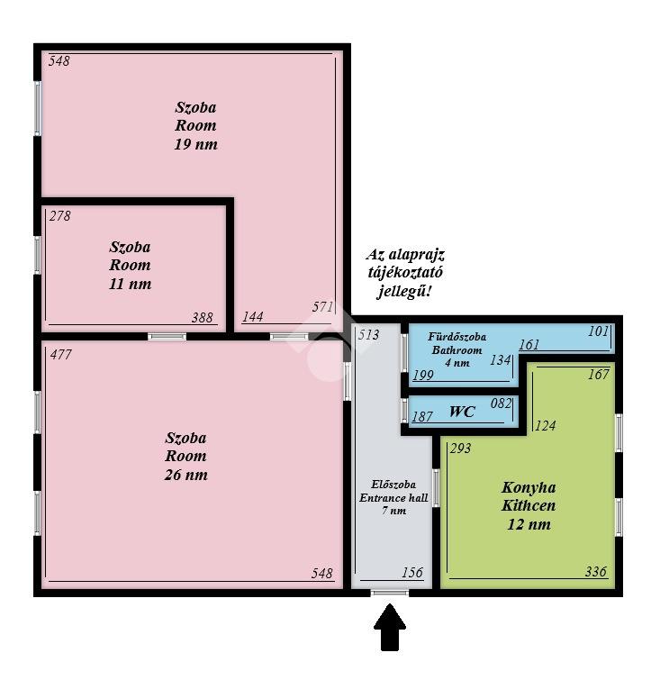
Eladó felújítandó, különleges adottságú lakás kiváló lokációban – 81 nm

Eladásra kínálunk egy 81 nm-es, felújítandó állapotú lakást, amely tökéletes választás azoknak, akik saját elképzeléseik szerint szeretnék kialakítani otthonukat. A lakás teljes szabadságot biztosít a belső terek megtervezésében, minden szükséges vezeték már ki lett építve, így a felújítás gyorsan és hatékonyan befejezhető.

Az ingatlan különlegessége a 3,80 méteres belmagasság, amely nemcsak elegáns, loft hangulatot teremt, hanem galériák kialakítására is ideális. A lakásban két külön nyíló hálószoba található, mindkettő saját galériával, ami extra tároló- vagy hálóhelyet biztosít.

A tágas nappali rendkívül világos, nagy ablakain keresztül egész nap természetes fény áramlik a lakásba. A nappaliban már kialakításra került a kandalló helye, amely különleges hangulatot adhat az elkészült otthonnak.

Az elrendezés modern és praktikus:

külön fürdőszoba és külön WC,

önálló, ablakos konyha, amelyhez galériás tárolóhely is tartozik.

A lakás déli tájolású, így egész nap napfényes, világos és kellemes klímájú tereket kínál. A nagy belmagasság és a tágas helyiségek miatt a lakás rendkívül szellős és könnyen alakítható, akár egyedi design megoldásokkal is.

A lokáció kiváló: csendes mellékutcában található, mégis pár perc sétára elérhető minden fontos szolgáltatás. A közelben találhatóak üzletek, éttermek, szolgáltatások, valamint a Mammut bevásárlóközpont és több tömegközlekedési csomópont, így a város bármely pontja könnyen megközelíthető.

Ez az ingatlan remek lehetőség saját otthon kialakítására vagy befektetésnek is, hiszen ritka az ilyen adottságú, nagy belmagasságú, jól alakítható lakás ezen a környéken.

További információért vagy megtekintésért keressen bizalommal!

!!!!AZ ÁR IRÁNYÁR!!!!

Összes mutatása

Tulajdonságok

Ref.:
59372
Állapot:
Felújítandó
Emelet:
Földszint
Lift:
Nincs
Építőanyag:
Tégla
Építés éve:
1910
Összes mutatása

Energetikai tanúsítvány

Ennél az ingatlannál az energetikai tanúsítvány folyamatban van
Építés éve:
1910

Vegye fel velünk a kapcsolatot

* Ez a mező kötelező
Franchisee
Mille-Case Kft.
1024 Budapest, Fillér utca, 8.
1024 Budapest, Fillér utca, 8. I-II. kerület Millenáris
Hétfő-Péntek: 09:00-18:00,Szombat: 09:00-14:00

Munkatársaink


  • Lesánics Rudolf
    Irodatulajdonos

  • Sámuel Nógrádi
    Irodavezető

  • György Póth
    Képviselő

  • Bence Kovács
    Képviselő

  • Alexa Ungár
    Asszisztens
Franchisee
Mille-Case Kft.
1024 Budapest, Fillér utca, 8.
Tecnocasa Group Logo

Minden ügynökségnek saját tulajdonosa van és önállóan működik.

árfolyam 26/05/2026
EUR 356.82 HUF

cégünk

Elérhetőségeink

2026 Gruppo T.F.M. Szolgáltató Zrt. - P. IVA 27421275-2-42 - 1068 Budapest, Király utca 102.. Minden ügynökségnek saját tulajdonosa van és önállóan működik.

Adatvédelmi irányelvek | Cookies tájékoztató